Mts Laan-Blauw (2017), Marknesse
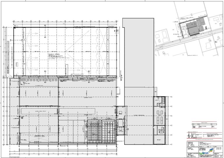
Mts Laan-Blauw uit Marknesse is een tulpenteelt en broeierijbedrijf. Na een grote uitbreiding in 2014, breidt in 2017 de broeierijtak uit met een schuurkas van ruim 1400 m2.
Agrofocus verzorgt voor Mts Laan-Blauw:
- Logistiek ontwerp
- Kostenraming
- Vergunningtraject
- Bestek en aanbesteding kas
- Installatietechnisch bestek
- Offertebeoordeling installaties
- Bouwbegeleiding
"Mooi zo'n multifunctionele schuurkas!"
